Progettazione scala soggiorno
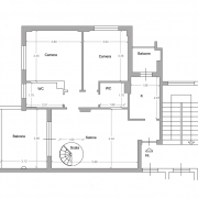
Progettazione di una scala da inserire all'interno del soggiorno per collegare due appartamenti di un condominio. ll lavoro eseguito per questo cliente ha richiesto varie fasi di intervento.
Una prima fase di smantellamento di parte del solaio con relativo progetto strutturale presentato al Genio Civile. Prima del getto sono stati posizionati dei tubi per permettere l'inserimento dei faretti direttamente al soffitto, visibili dalle foto a lavoro finito.
In seguito è stata ripristinata la pavimentazione tramite anche il rifacimento del massetto.
Chiusa la parte muraria si è proceduto all'installazione della scala con la chiusura dei lavori.
Il nostro studio ha seguito tutte le fasi, da quelle burocratiche a quelle progettuali e realizzative.





