Progetto centro estetico
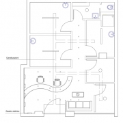
Progetto di un beauty center per un locale a Roma nella zona di San Giovanni che prevede la sistemazione degli interni anche nei suoi aspetti funzionali e la disposizione delle stanze nelle quali viene sfruttato ogni minimo spazio, organizzate in modo ergonomico per la massima comodità.
Importante è considerare l'inserimento degli impianti di aerazione e di riscaldamento con tecnologie che ci permettono un alto risparmio energetico e autogestite da un computer centrale al fine di ottenere un ambiente sempre confortevole. In questo progetto abbiamo cercato di sfruttare al meglio tutti gli spazi calcolandoli al centimetro e facendo in modo che l'ambiente risultasse perfettamente funzionale sia per gli operatori che per i clienti.
Nonostante un badget limitato si è riusciti ad inserire tutte le proposte del cliente affiancandolo nelle scelte che caratterizzano questo tipo di attività.
