Palazzina C
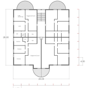
Un palazzina “Classica”. Questo progetto è stato realizzato seguendo i dettami dell’Alberti descritti nei dieci libri sull’Architettura. La facciata è divisa in 7 parti di cui 3 sono dedicate alle finestre. La struttura complessiva è formata da un quadrato, dove la larghezza supera di 3 metri l’altezza. Ogni piano è definito da 10 parti (4 metri), di cui 1 parte dedicata alla cornice, 3 al sotto finestra e 6 alla finestra. Il sommoscapo delle colonne dell’atrio è 1/10 del diametro alla base.
I materiali utilizzati sono quelli tradizionali della cultura architettonica romana: travertino per la facciata, mattoni, peperino per i marcapiani, il tetto è piano ed è coperto da un tetto a falde con struttura in legno; in pratica una copertura praticabile coperta.
Una palazzina di chiara ispirazione “classica“, un termine che in realtà significa poco, dato che a volte per classico si vuole intendere passato, e quindi privo di originalità. Essere originali significa costruire delle abitazioni in una ruota panoramica del Luna Park, farebbe la felicità degli architetti “Modarnisti” ma non credo di quelli che ci andranno ad abitare.
Elaborata secondo i 3 principi fondamentali della mia progettazione ( e non solo ):
1) La funzione che esprime il suo utliizzo. Chi abiterà in quel luogo non vorrà soggiornare in un quadro astrattista ma vorrà avere uno spazio comodo.
2) I materiali, che resistano al tempo in modo che l’invecchiamento la valorizzi più che deprezzarla.
3) I particolari, cardine stesso della progettazione, ciò a cui intorno tutto ruota, il particolare modella lo spazio.
Error
