Pratiche edilizie SCIA - Roma
La presentazione della SCIA (Segnalazione Certificata Inizio Attività) riguarda due settori, il settore dedicato all'apertura delle attività commerciali e quello legato specificatamente all'attività edilizia.
Nel primo settore, ossia quello delle attività commerciali, l'utilizzo della SCIA permette di iniziare immediatamente l'attività lavorativa dopo la presentazione di tutti i documenti richiesti dall'amministrazione locale, che in genere viene svolta su internet tramite un portale (SUAP). Il tecnico incaricato dalla committenza provvederà ad elaborare ed inserire tutta la documentazione necessaria.
Nel settore edile la pratica SCIA va presentata a mano, sempre tramite un tecnico, direttamente al Municipio di appartenenza. Si utilizza la SCIA quando i lavori non riguardano solo la diversa distribuzione degli spazi interni ma anche gli elementi strutturali, la modifica dei prospetti, il cambio di destinazione d'uso, etc.. Nel primo caso (modifica degli elementi strutturali) si presenta una SCIA semplice, nell'altro caso (modifica dei prospetti e cambio uso) si presenta al Comune una SCIA in alternativa al permesso di costruire.
In tutte e due i casi è necessario attendere i canonici 30 giorni prima di poter iniziare i lavori.
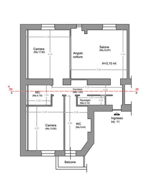
Esempio esplicativo di planimetria con apertura vano su muratura strutturale
Ante - Interim - Post Operam
Error
TAG: SCIA per pratiche edilizie - Pratica SCIA Roma - Presentazione SCIA Roma - Pratiche edilizie SCIA Roma - Presentazione pratiche scia roma

